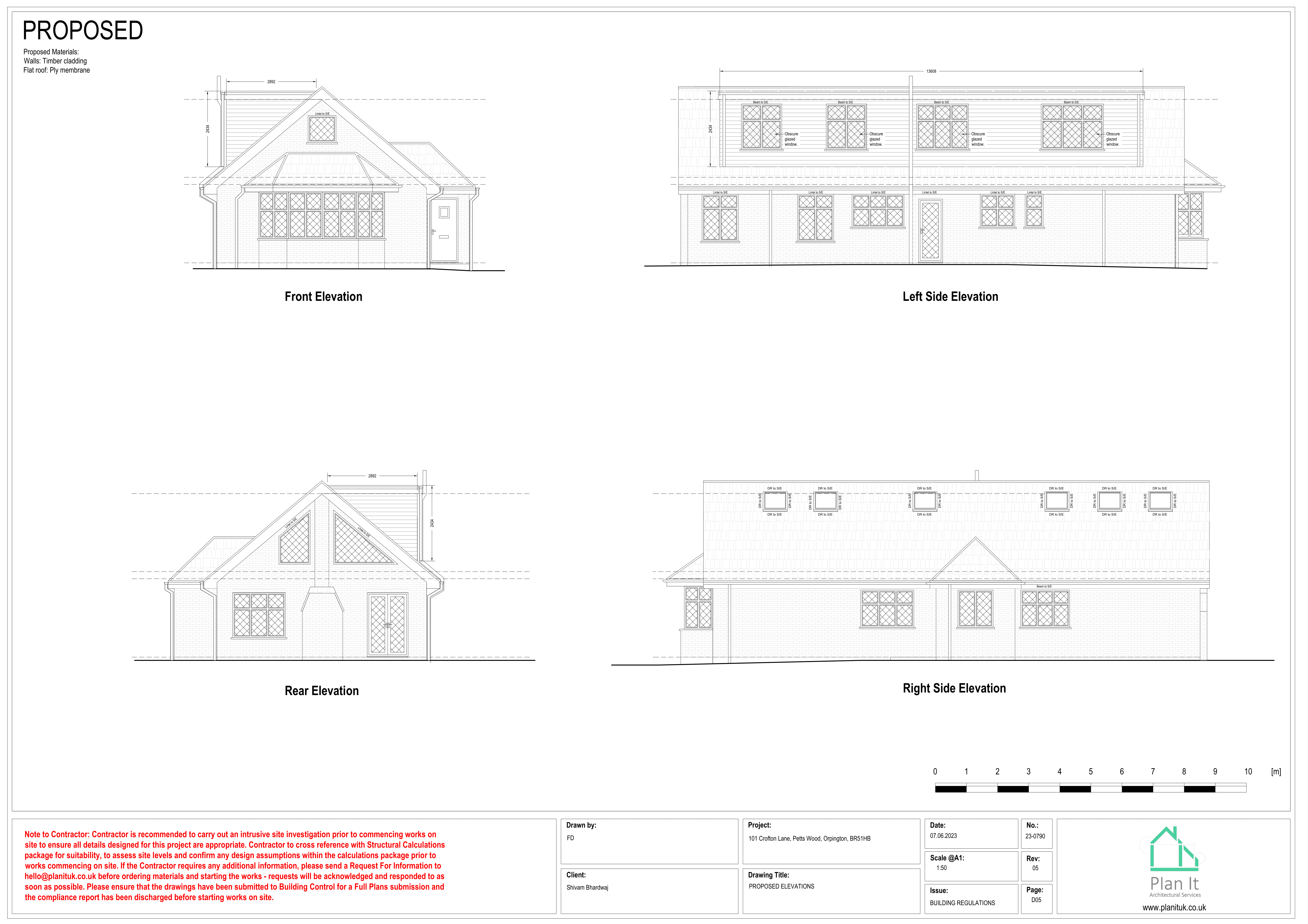
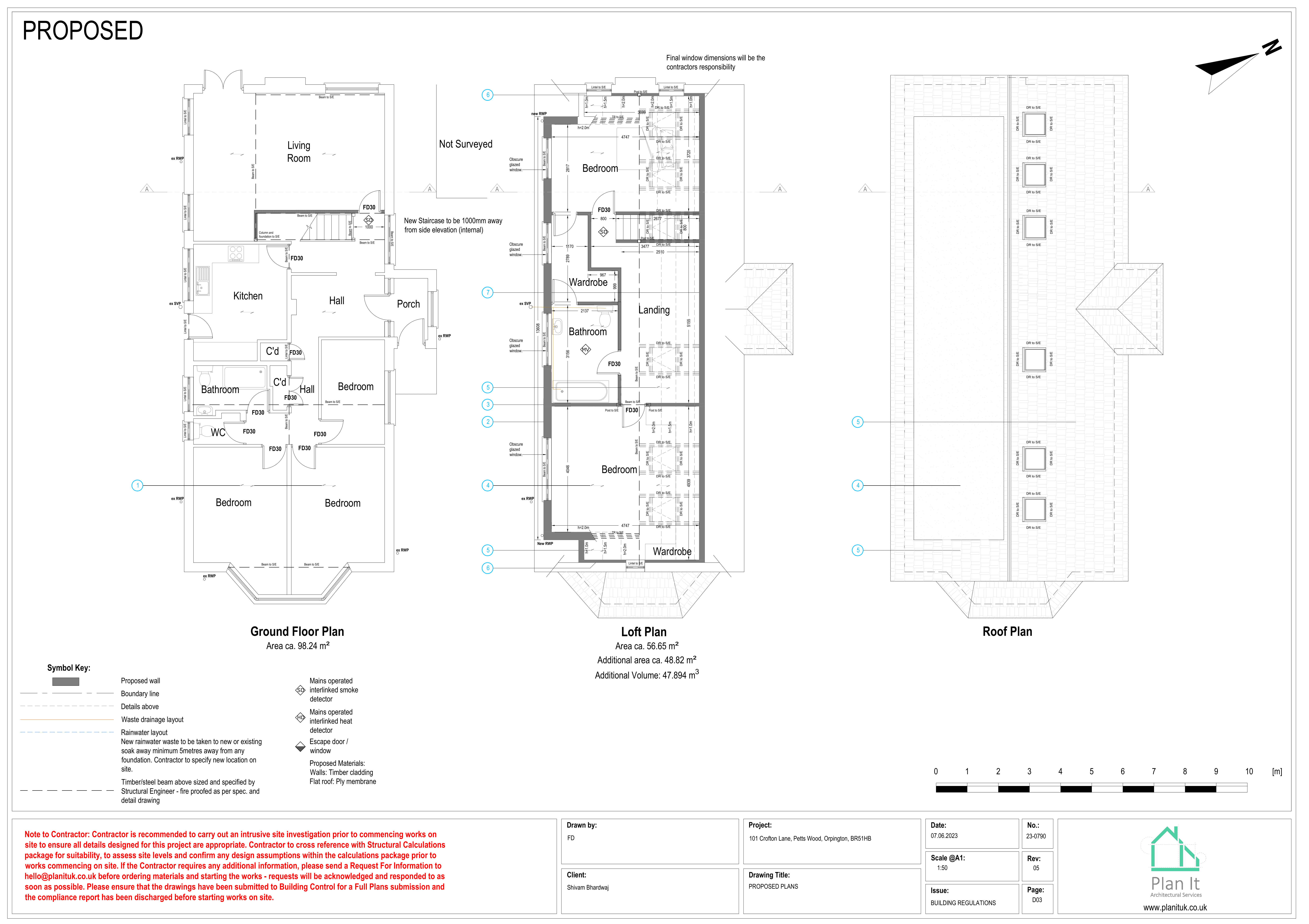
Bungalow Loft Conversion
A bungalow loft conversion is a fantastic way to add extra living space to your home without major structural changes. This conversion involves transforming the loft space in a bungalow into a usable room, such as a bedroom, home office, or playroom.
Bungalow conversions are ideal for properties with sufficient headroom, as they do not require the construction of dormers or other extensions. This type of conversion can make a significant difference to your living space, providing much-needed room without the need to move house.
Find Out More About Hip to Bungalow Loft Conversions
Bungalow loft conversions are perfect for creating bright and airy rooms that benefit from plenty of natural light. The conversion can be designed to suit your specific needs, whether you want a cosy bedroom, a spacious office, or a versatile play area.
At CS Lofts, we are experts in delivering bungalow loft conversions that are both practical and aesthetically pleasing. Our team manages every aspect of the project, from planning and design to construction and finishing, ensuring a seamless and stress-free experience.
We take care of all the details, including obtaining any necessary permissions and ensuring compliance with building regulations, so you can enjoy your new space with complete peace of mind.







