CS Lofts constructed this hip to gable loft conversion in Beckenham. The additional space allowed the family to have a new master bedroom with ensuite.
Hear from the clients
“CS Lofts’ quote was all inclusive and very comprehensive”
“I found the builders really friendly and they just got on with their work really quickly”
“The team were really friendly, easy to get on with, there were no additional extras and nothing was too much trouble”
– John and Sarah –
Customer's Journey
Introduction to CS Lofts
John and Sarah’s journey to expand their home in Beckenham began when they discovered CS Lofts through a recommendation on the Nextdoor website. Encouraged by positive community feedback, they reached out to CS Lofts for a more personalized consultation. This initial interaction set the tone for the entire project, highlighting the firm’s commitment to clarity and customer satisfaction. John and Sarah were particularly impressed by the all-inclusive, comprehensive nature of the quote provided, which detailed every aspect of the construction process and financial considerations.
Consultation and Planning
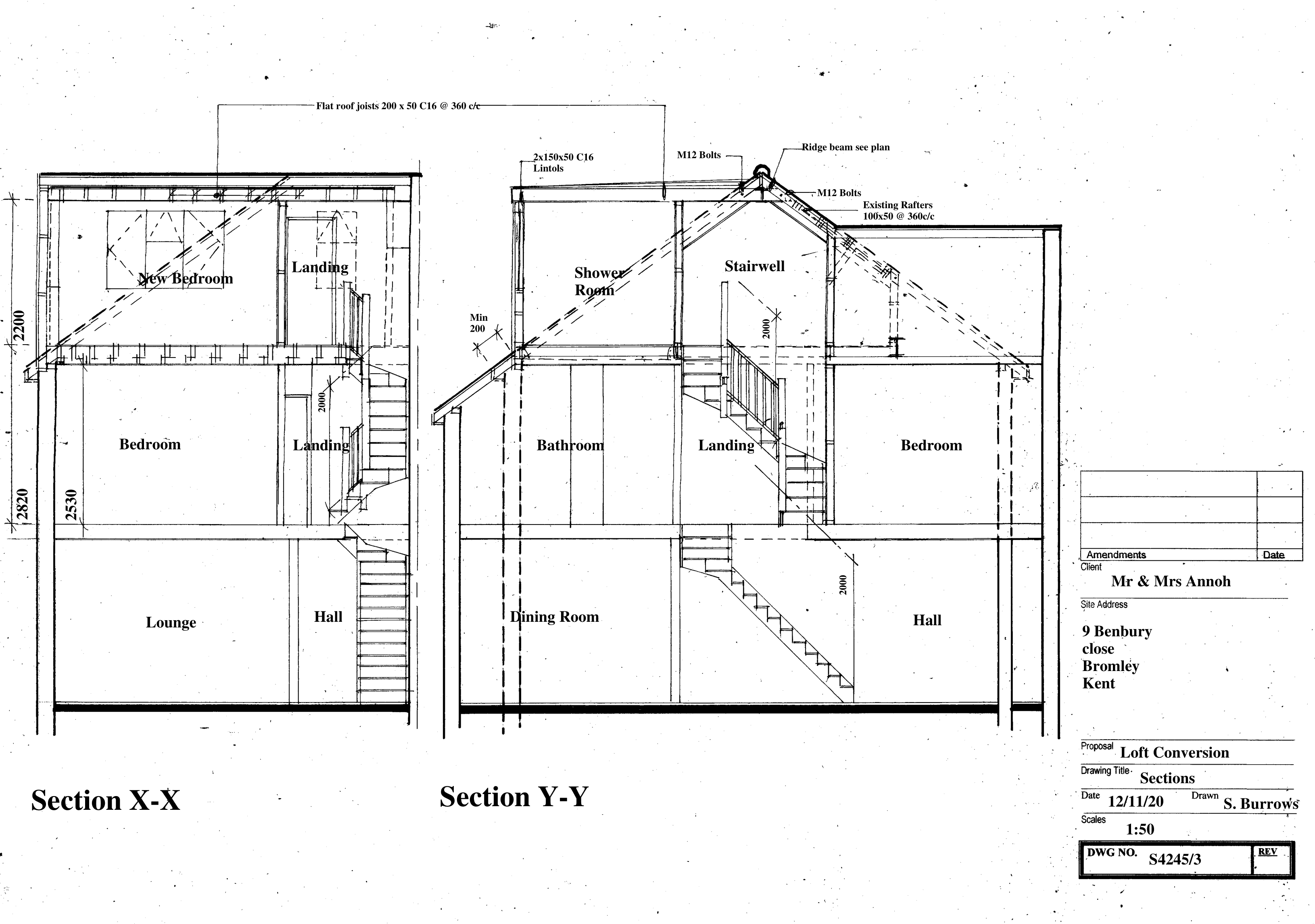
The planning phase kicked off with an in-person consultation at John and Sarah’s residence. During this meeting, CS Lofts outlined the proposed Hip to gable loft conversion, which would transform their unused attic space into a stylish bedroom and bathroom. This new area was intended to be listed on Airbnb, providing a source of additional income. The CS Lofts team carried out a detailed survey of the existing structure, prepared architectural drawings, and completed the necessary structural calculations, ensuring that all planning and building regulations were met meticulously.
Construction Phase
The construction commenced, and over the next 9 weeks, John and Sarah saw their unused loft transform into a vibrant and functional living space.
Throughout this period, they found the builders from CS Lofts to be exceptionally professional and efficient. The team’s approach to work was straightforward and quick, which John particularly appreciated, noting how the builders were “really friendly and just got on with their work really quickly.”
Communication between the homeowners and the CS Lofts team was seamless, facilitated by regular updates and open lines of discussion. This ensured that John and Sarah were always informed of the progress and any adjustments that needed to be made. Their feedback highlights the ease of interaction with the team: “The team were really friendly, easy to get on with, there were no additional extras and nothing was too much trouble.”
Completion and Outcome
By the end of the 9-week period, the loft conversion was completed to John and Sarah’s satisfaction. The new space was not just built to high standards but also styled to appeal to future Airbnb guests, combining functionality with aesthetic appeal. The project was delivered on time and within the initially agreed budget, with no hidden costs or unwelcome surprises.
Review and Reflection
In their review, John and Sarah expressed their complete satisfaction with CS Lofts. They praised the comprehensive nature of the initial quote and the professionalism of the construction team. The lack of additional extras and the team’s accommodating nature were particularly valued, making the whole process stress-free and enjoyable.
Conclusion
John and Sarah’s experience with CS Lofts exemplifies a well-managed construction project where client satisfaction is paramount. The new loft space not only enhances their home’s functionality and aesthetic but also provides a strategic financial benefit through Airbnb. Reflecting on the journey, the seamless process from initial consultation to project completion reaffirms their decision to choose CS Lofts, marking the project as a resounding success in their home improvement endeavours.



