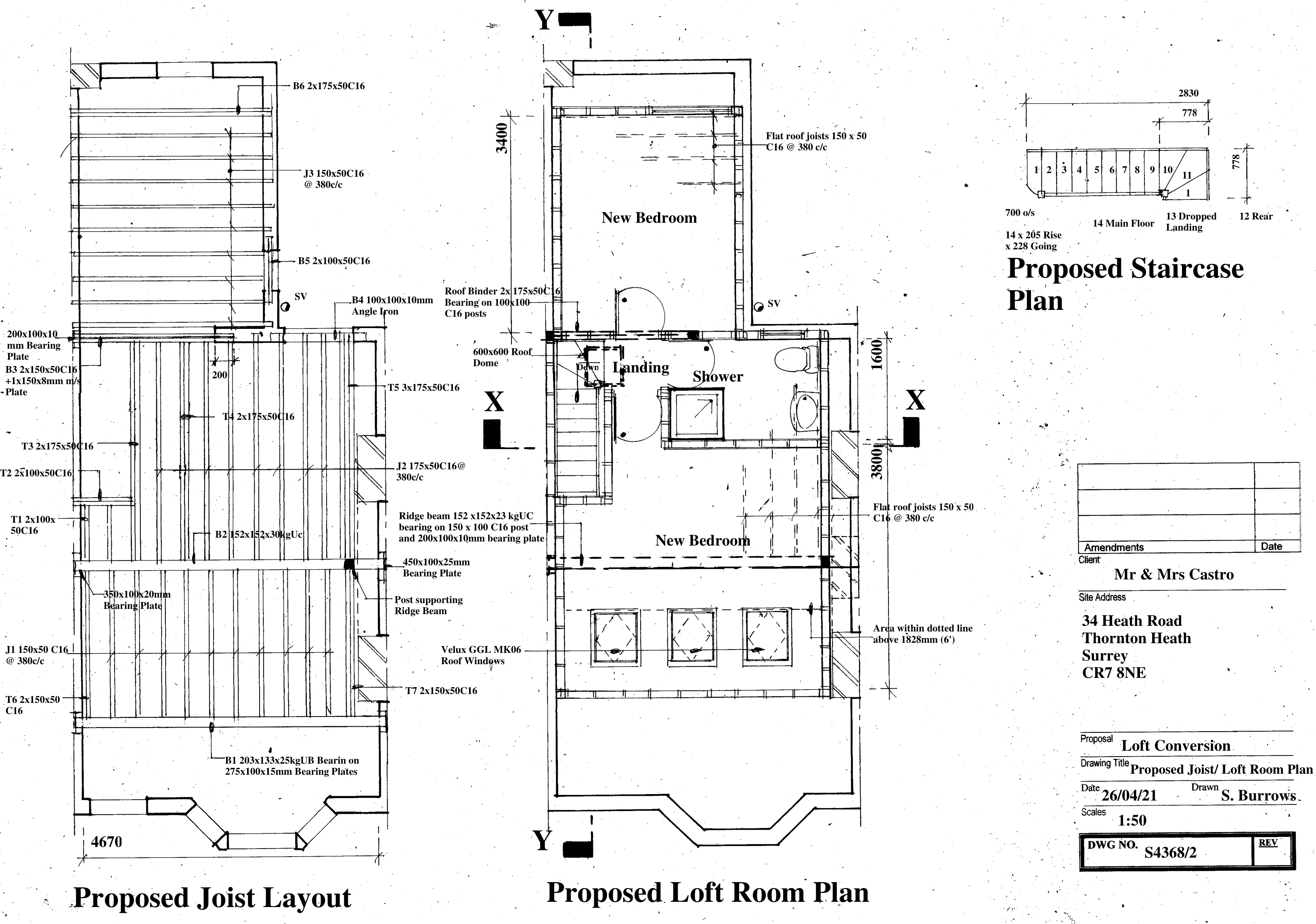
CS Lofts constructed this l-shaped loft conversion for a growing family in Thornton Heath. The additional space allowed the family to have a new master bedroom with ensuite
Hear from the clients
“Every thing has been a really nice experience”
“We are really, really happy!”
“Of course I would recommend CS Lofts”
– Inigo –
Customer's Journey
Initial Engagement and Consultation
Inigo and his wife, expecting a new baby, realised the need for additional living space in their Thornton Heath home. This led them to explore the idea of a loft conversion. After researching various companies, they decided to engage with CS Lofts, drawn by their specialisation and positive reviews. The process began with a free consultation at their home. During this initial meeting, CS Lofts assessed the existing space, listened to Inigo and his wife’s needs, and proposed an L-shaped dormer loft conversion that would include two bedrooms and a bathroom.
Detailed Planning and Quotation
Following the consultation, CS Lofts provided Inigo with a detailed written quote. This document outlined the scope of work, the costs involved, and the expected timeline, ensuring transparency from the outset. To proceed with confidence, Inigo required detailed plans and precise structural calculations, which CS Lofts promptly prepared. These documents were crucial for planning approval and provided Inigo and his wife with a clear vision of the finished project.
Construction Phase
The construction of the loft began shortly after all plans were approved. The L-shaped dormer conversion was designed to maximise the available space and included modern features to accommodate a growing family. The project was scheduled to take 10 weeks, and CS Lofts’ team worked diligently to adhere to this timeline. Throughout the construction phase, Inigo was impressed by the professionalism and efficiency of the builders. Regular updates and the ability to discuss any aspect of the project as it progressed provided him with peace of mind and kept him involved in every decision.
Communication and Workmanship
One of the highlights of Inigo’s experience with CS Lofts was the open and effective communication. Whether it was a query about construction materials or a request for a quick adjustment, the response from CS Lofts was prompt and helpful. This seamless communication ensured that the project ran smoothly and according to Inigo’s expectations. The quality of workmanship was evident in every aspect of the build, from the structural integrity of the loft to the fine finishes in the bathroom and bedrooms.
Completion and Final Review
At the project’s conclusion, Inigo and his wife were presented with a beautifully transformed home that perfectly met their needs. The new bedrooms provided the much-needed space for their growing family, and the additional bathroom enhanced the functionality of their home. The entire project was completed on schedule and without any hidden costs, a testament to CS Lofts’ commitment to honesty and integrity in service.
Customer Feedback and Recommendation
In their review, Inigo and his wife expressed their genuine satisfaction and happiness with the outcome of the loft conversion. “Everything has been a really nice experience,” and “We are really, really happy!” were some of the comments they shared, reflecting their overall contentment with the project. Inigo’s readiness to recommend CS Lofts, “Of course I would recommend CS Lofts,” underscores the positive experience and the trust established throughout their customer journey.
Conclusion
Inigo’s experience with CS Lofts illustrates a perfect blend of professional expertise, customer-focused service, and high-quality construction. The project not only fulfilled a functional need but also enhanced their quality of life, making their home ready for the new addition to their family.



