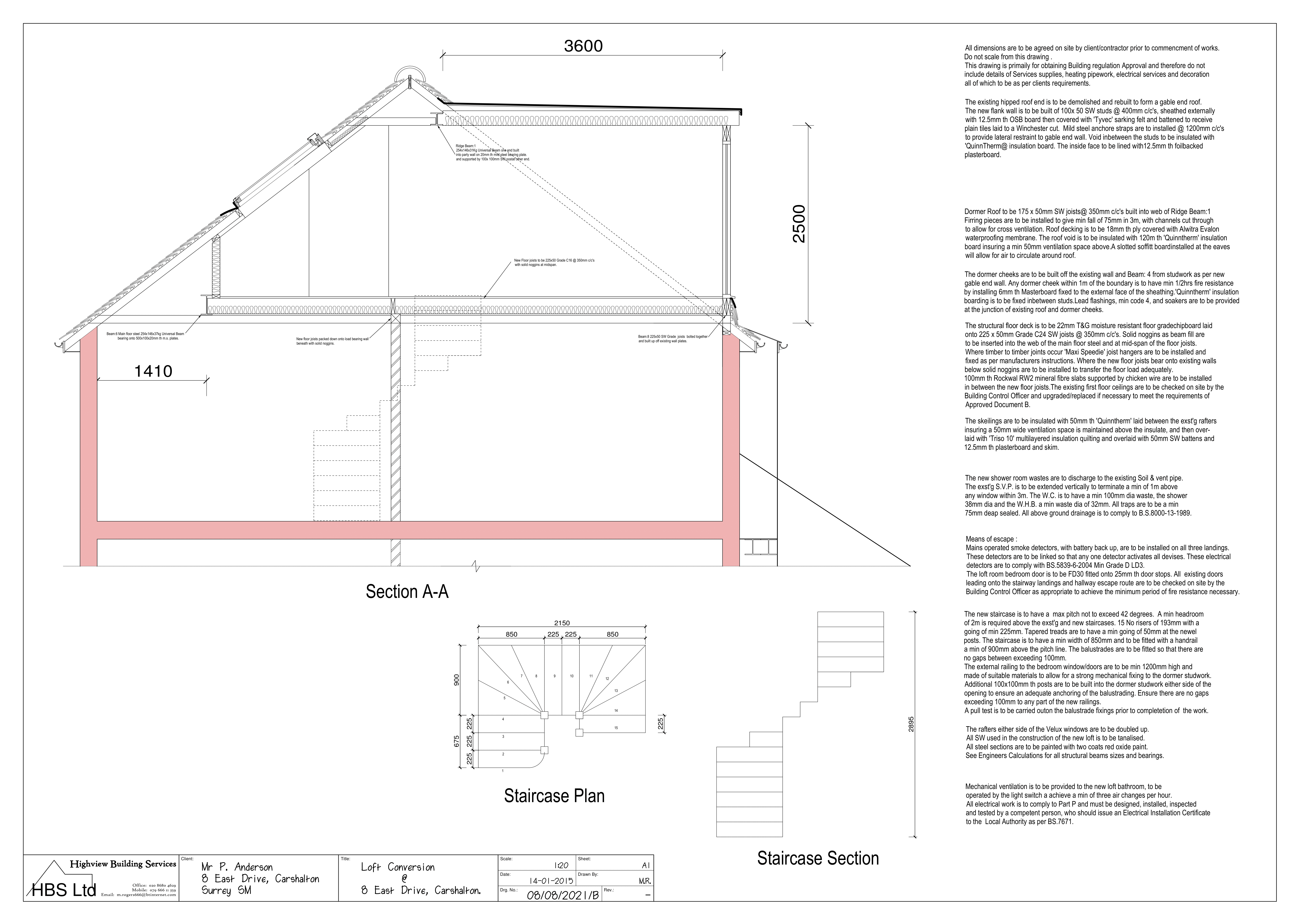
CS Lofts constructed this hip to gable loft conversion for a growing family in Carshalton. The additional space allowed us to create a new master bedroom with an ensuite large enough to accommodate both walk in shower and free standing bath.
Hear from the clients
“From our first interaction (the in person quote) and throughout our project we have been hugely impressed by everyone at CS Lofts. They are a family business and their care, attention and professionalism shines through. You are provided with a fixed quote, a comprehensive quote sheet and contract before going ahead, which is so refreshing to see exactly what will be done, and everyone is clear from the outset.“
“Richard was fantastic as our project manager, a real ‘can-do’ attitude and problem solver going above and beyond to ensure our satisfaction at every stage, including the aftercare provided long after the project had finished. Louise was always contactable and so helpful moving our work start date when our house purchase was delayed. Luke and Lewis (our 1st fix team) were so polite and professional – it was a pleasure having them around. Carpenters Luke and Gil (2nd fix) are very skilled and did a fantastic job finishing with great attention to detail, especially fixing complex sliding doors we had chosen. Their recommended tiler, Brian’s work was also impeccable. Too many individuals to name them all. CS Lofts completed the buildings regs approval for us and coordinated all the tradespeople very impressively, especially over the Christmas period.“
“We have no hesitation in highly recommending CS Lofts to anyone looking for a caring, professional and quality company. We’re chuffed!“
– Amy and Patrick –
Customer's Journey
Initial Engagement and Consultation
Amy and Patrick’s home improvement journey began when they decided to expand the living space of their Carshalton home. They sought a reliable contractor for a loft conversion and found CS Lofts through a combination of local reputation and positive reviews. The couple opted for a hip to gable conversion that included one bedroom and a large ensuite bathroom with luxurious fittings such as a walk-in shower and freestanding bath. CS Lofts’ detailed in-person consultation provided Amy and Patrick with a comprehensive overview, instilling confidence in the company’s capability to handle their project.
Detailed Quote and Survey
Following the initial consultation, CS Lofts provided a written quote that detailed the scope and cost of the project, ensuring there were no hidden charges. This transparency was crucial for Amy and Patrick as they budgeted for the transformation of their home. CS Lofts also conducted a thorough survey of the existing loft space and prepared the necessary drawings and structural calculations, laying a solid foundation for the construction work ahead.
Construction Phase
The construction began on schedule, and the project was planned to span 10 weeks. Throughout this period, CS Lofts displayed exceptional professionalism and organisational skill. The first fix team, Luke and Lewis, were noted for their courteous and professional manner, effectively managing the structural changes required for the hip to gable conversion. The second phase of carpentry, handled by Luke and Gil, involved meticulous craftsmanship to create the envisioned living space and the intricate features of the ensuite bathroom.
Ongoing Support and Communication
Throughout the loft conversion process, Amy and Patrick were in constant communication with their project manager, Richard, who ensured that all aspects of the project ran smoothly and according to plan. Louise from the CS Lofts office was also pivotal in providing ongoing support, addressing any administrative queries with promptness and a helpful attitude. This level of care and attention, typical of a family-run business, made a significant impact on their overall experience.
Completion and Review
Upon completion of the 10-week project, Amy and Patrick were thrilled with the outcome. The new bedroom was not only functional but also beautifully finished, and the ensuite bathroom became a highlight of their home with its spacious walk-in shower and elegant freestanding bath. Their review of CS Lofts was glowing, citing the exceptional care and professionalism from all team members involved. They were especially appreciative of the seamless integration of sophisticated architectural features and the high standard of workmanship.
Reflections and Recommendation
Reflecting on their experience, Amy and Patrick felt that CS Lofts had not only met their expectations but had exceeded them. The journey from their first inquiry to the completion of their loft conversion was marked by professional integrity, personal care, and the delivery of high-quality craftsmanship. Their positive experience compelled them to recommend CS Lofts highly, celebrating the company’s commitment to excellence and customer satisfaction.
Conclusion
Amy and Patrick’s customer journey with CS Lofts showcases the benefits of working with a dedicated, family-run business that prioritises client satisfaction and quality results. Their new loft space not only added valuable living area to their home but also enhanced their quality of life, making their investment a resounding success.



