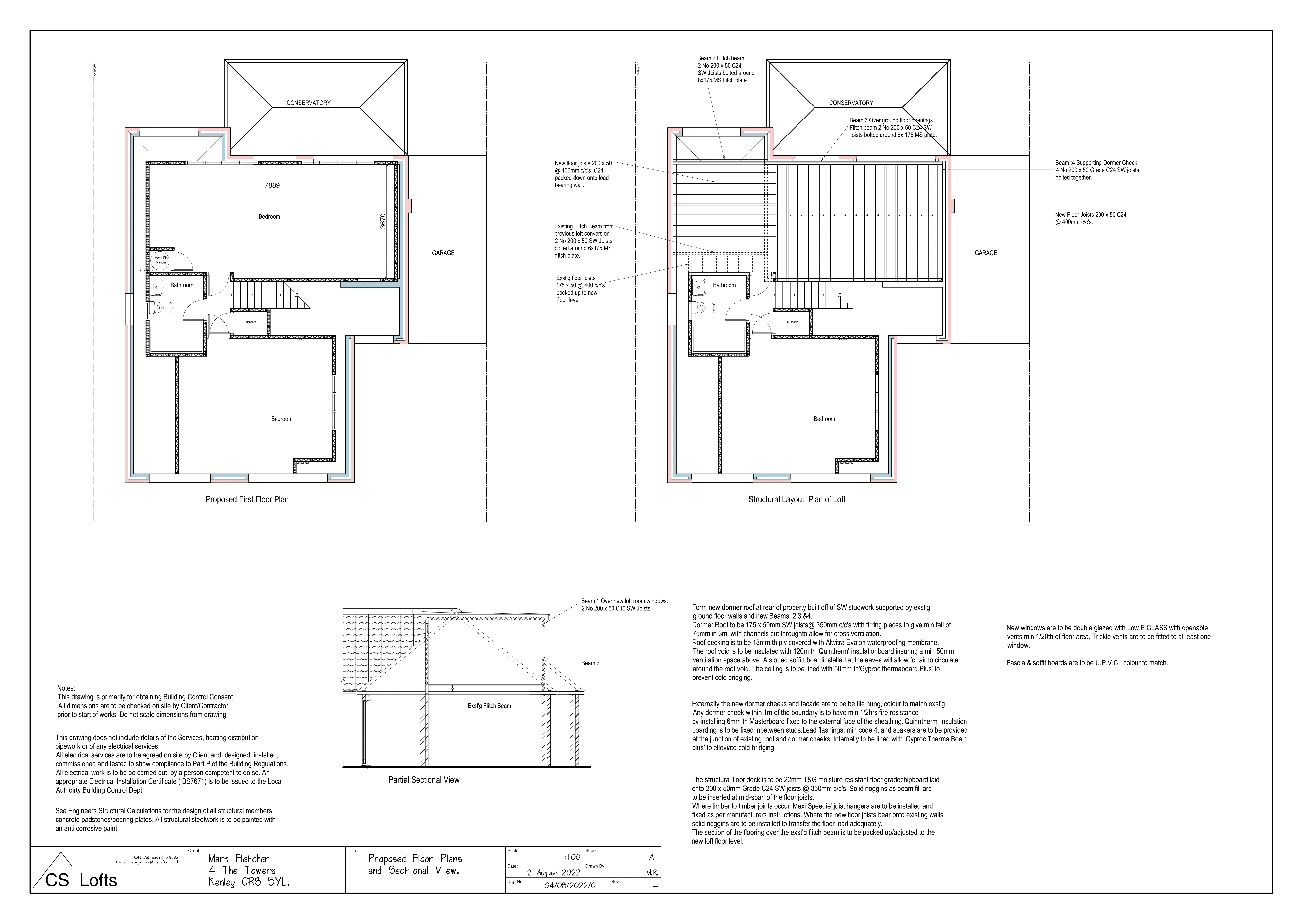
CS Lofts constructed this rear box loft conversion on a chalet bungalow in Purley. The additional space allowed for a second, much larger bedroom in the upstairs of the property
Hear from the clients
“Really professional company”
“Best builders we have ever worked with”
“Benny and Ben were just fantastic, so easy to communicate with and really friendly”
“We would highly recommend CS Lofts”
– Mark –
Customer's Journey
Initial Consideration and Engagement
Mark’s journey to expanding his home began shortly after the arrival of his new baby boy, when he quickly realized the need for more living space. Initially considering a move to a larger house, Mark was deterred by the high costs involved. This led him to explore alternative solutions, ultimately piquing his interest in a loft conversion as a cost-effective way to add the necessary space. After thorough research and reading positive reviews about their professionalism and client satisfaction, Mark decided to contact CS Lofts to discuss the potential for his Purley-based chalet bungalow.
Consultation and Detailed Planning
Mark’s first interaction with CS Lofts was a home visit by Richard, who provided a comprehensive consultation on the feasibility of a rear dormer loft conversion. This conversion would allow for a second, more spacious upstairs bedroom suitable for the growing family. Following the consultation, CS Lofts provided Mark with a detailed written quote, conducted a thorough survey of the existing structure, and prepared necessary drawings and structural calculations. These preliminary steps ensured that every detail was meticulously planned and transparent from the start.
Construction Phase
The construction phase was scheduled to take 10 weeks. CS Lofts’ team, led by the commendable duo Benny and Ben, embarked on the project with professionalism and efficiency. Mark appreciated the ease of communication and the friendly demeanor of the entire crew, which significantly reduced the stress typically associated with home renovation projects. The team’s dedication to maintaining a clean and organized work site further exemplified their commitment to high standards and customer care.
Ongoing Support and Customer Care
Throughout the loft conversion process, Mark was impressed by the continuous support and responsiveness of CS Lofts. Any queries or concerns he had were addressed promptly, ensuring the project remained on track and to his specifications. This level of interaction not only facilitated a smooth workflow but also built a strong trust relationship between Mark and the CS Lofts team.
Project Completion and Final Review
Upon completion of the project, Mark was thrilled with the outcome. The new upstairs bedroom transformed the functionality of the bungalow, providing much-needed space for his family. Reflecting on the process, Mark’s review was overwhelmingly positive. He described CS Lofts as a “really professional company” and praised Benny and Ben as “the best builders we have ever worked with.” His experiences underscored the ease of communication and the friendliness of the staff, leading him to highly recommend CS Lofts to others.
Conclusion
Mark’s decision to opt for a loft conversion over moving house proved to be a wise choice, thanks to the expertise and professionalism of CS Lofts. The journey from the initial consultation to the joyous completion of his new bedroom was marked by meticulous planning, exceptional craftsmanship, and a focus on customer satisfaction. Mark’s story is a testament to the impact that thoughtful and well-executed home improvements can have on family life and living standards. Through their diligent work, CS Lofts not only met but exceeded expectations, solidifying their reputation as a top choice for home renovations.

