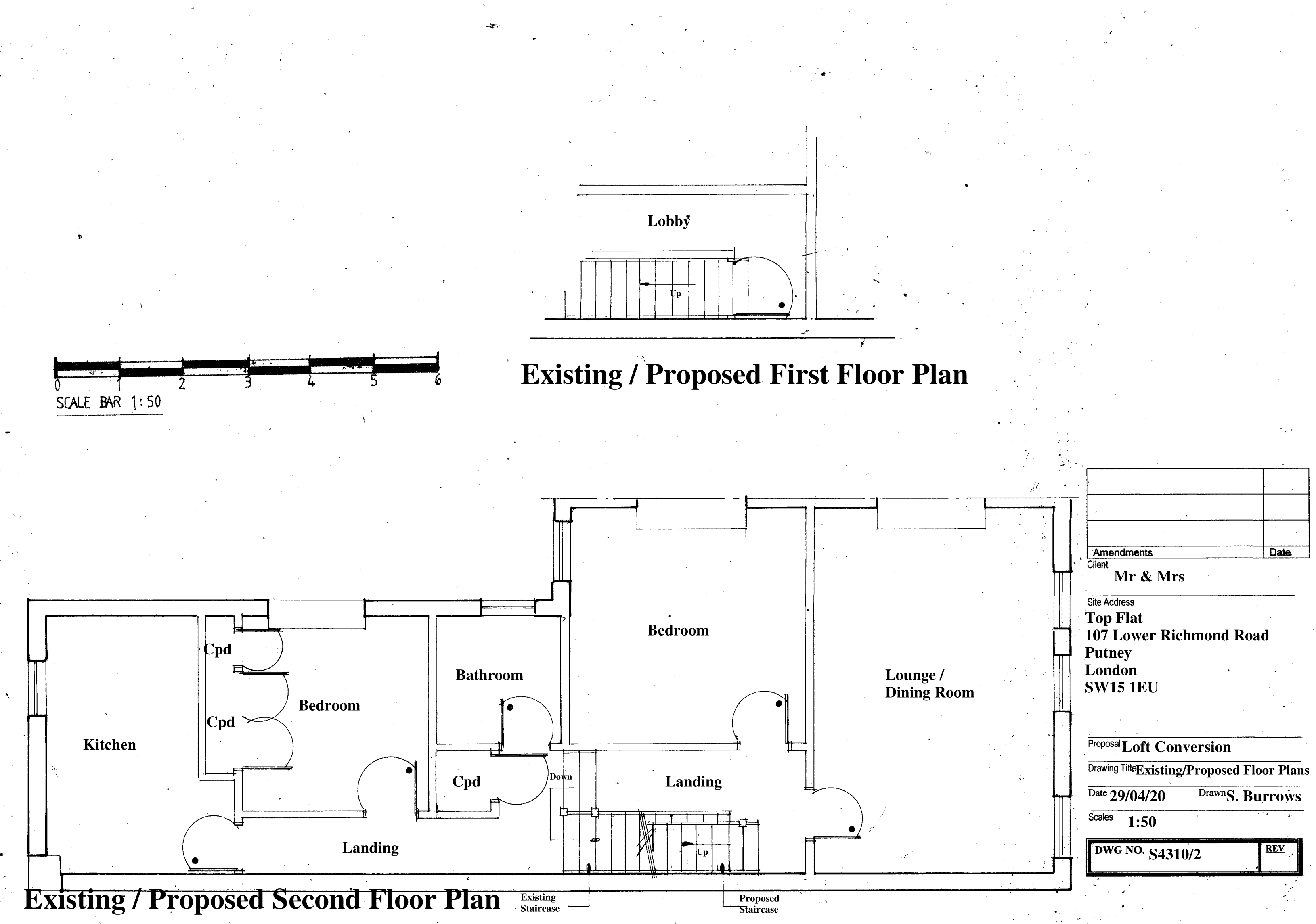
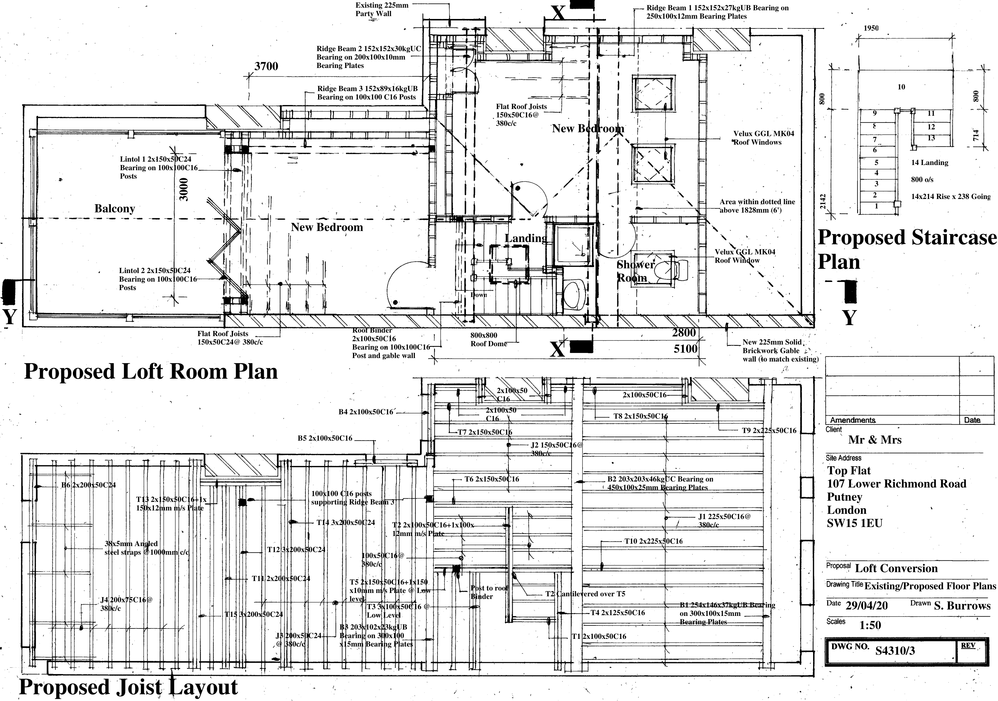
CS Lofts constructed this complex mansard loft conversion in Tooting. The property is a top floor apartment which meant navigating local planning as well as freehold requirements. The result is quite special, a new master bedroom with ensuite, an office for home working and a roof terrace to provide that much prized outside space.
Hear from the clients
“We can’t recommend CS Lofts highly enough. Richard, Sam and their team were exceptional. They were personally there every day to see the project through from start to finish, always being solution focused, and making sure the project was moving forward at pace. Their communication was excellent all throughout the project and they made what could be a stressful undertaking so much easier. We are so pleased with the end result. Highly recommend!”
– Michelle and Stephen –
Customer's Journey
Initial Discovery and Decision Making
Steve and Michelle’s journey to expanding their home began when they needed additional space to accommodate their new work-from-home lifestyle. Upon hearing about CS Lofts from a former colleague who had a positive experience with the company, they decided to explore their options. After comparing several quotes, it was the assurance and confidence provided by CS Lofts that solidified their decision to proceed with them for their loft conversion project in Tooting.
Consultation and Planning
The process kicked off with a comprehensive home consultation by CS Lofts. This initial meeting was critical in establishing the scope of the project, which included a dormer loft conversion adding two bedrooms, a bathroom, and a balcony—an ideal addition for Steve and Michelle’s needs. Following the consultation, CS Lofts provided a detailed written quote, conducted a thorough survey, and prepared precise drawings and structural calculations. This meticulous planning phase ensured all elements were clear and agreed upon, setting a solid foundation for the project.
Construction Phase
The loft conversion was scheduled to take 11 weeks. During this time, Richard, Sam, and their team were hands-on, visiting daily to oversee the progress and resolve any issues promptly. Their solution-focused approach kept the project moving forward efficiently, which was particularly appreciated by Steve and Michelle. The team’s presence and proactive management significantly eased what could have been a very stressful period, ensuring that construction disruptions were minimal and well-handled.
Communication and Project Management
Throughout the project, CS Lofts excelled in their communication. Regular updates and open dialogue ensured that Steve and Michelle were always informed about the status of their loft conversion. This exemplary communication was crucial in maintaining transparency and building trust between the homeowners and the CS Lofts team. It allowed for a smooth and collaborative relationship, with Steve and Michelle feeling involved and reassured every step of the way.
Completion and Review
Upon completion, the new loft space exceeded Steve and Michelle’s expectations. The additional bedrooms and bathroom provided the much-needed space for their home office setups, while the balcony offered a refreshing outdoor retreat. Their review of CS Lofts was glowing: “We can’t recommend CS Lofts highly enough. Richard, Sam and their team were exceptional… Their communication was excellent all throughout the project and they made what could be a stressful undertaking so much easier. We are so pleased with the end result. Highly recommend!” Their satisfaction with the project reaffirmed their choice in CS Lofts, emphasizing the company’s capability to deliver high-quality results.
Final Thoughts
Steve and Michelle’s experience with CS Lofts illustrates a successful customer journey characterised by meticulous planning, excellent project management, and exceptional execution. The professional approach adopted by CS Lofts ensured that the loft conversion not only met but surpassed their expectations, enhancing both their property’s value and their quality of life. This journey underscores CS Lofts’ reputation as a trustworthy and competent provider in the loft conversion market, making them a recommended choice for potential clients looking for similar transformations.





