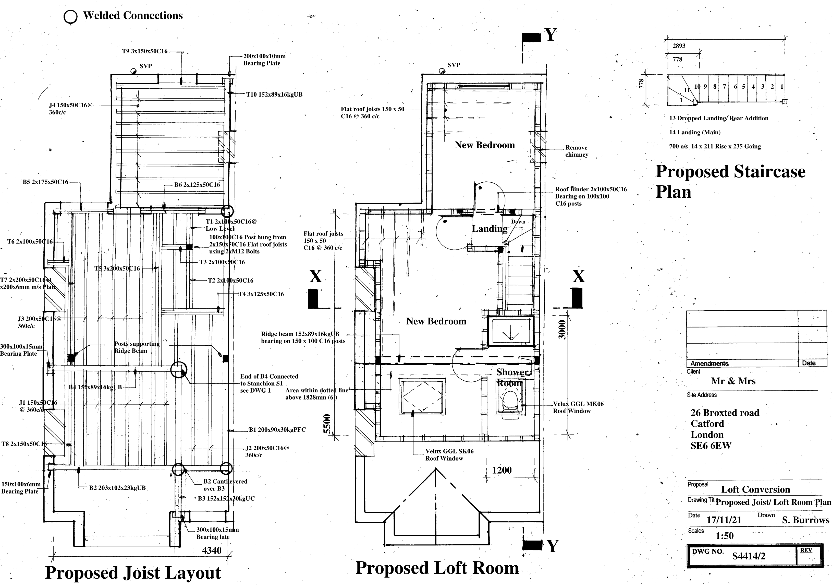
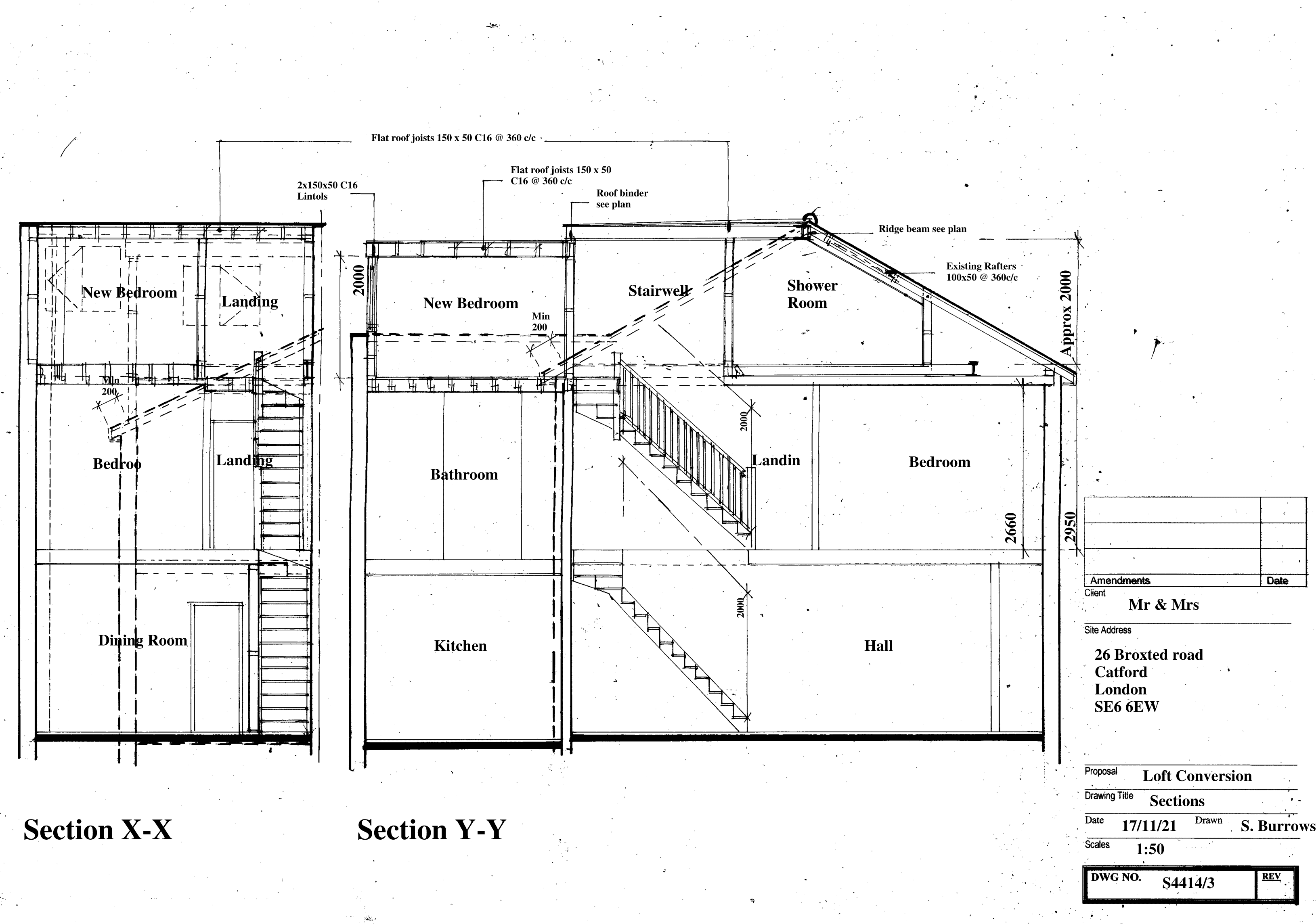
CS Lofts constructed this l-shaped loft conversion in Streatham. Making use of the l-shape we were able to add a master bedroom and ensuite with an office to the rear.
Hear from the clients
“Really open and transparent”
“Good communication” “ Respectful of our space”
“CS lofts work was great, they were on time and did absolutely every thing they said they would do”
“Definitely recommend CS lofts”
– James –
Customer's Journey
Initial Engagement and Decision
James’s path to enhancing his Streatham home began with the need for more functional space, aiming to add a bedroom, an office, and a bathroom. After receiving quotes from three different companies, James chose CS Lofts, influenced by more than just competitive pricing. His decision was grounded in the company’s reputation for being reliable and straightforward, as he sought a firm that promised transparency and professionalism.
Consultation and Detailed Planning
James’s journey with CS Lofts commenced with an in-person consultation at his home. This step was crucial for setting clear expectations and scope for the L-shaped loft conversion. During the visit, CS Lofts provided James with a detailed written quote, reflecting their open and honest approach. They followed this with a thorough site survey and the preparation of detailed drawings and structural calculations. These initial preparations ensured that every aspect of the conversion was planned meticulously, aligning with James’s vision and the structural integrity of his home.
Construction Phase
The project was set to span 10 weeks, a timeline that CS Lofts adhered to meticulously. The construction phase progressed smoothly, with CS Lofts managing all aspects efficiently. James noted their punctuality and the way they respected his space during the build, minimizing disruption to his daily life. This respect for client living conditions, along with their commitment to the project timeline, significantly enhanced his experience.
Communication and Transparency
Throughout the conversion process, CS Lofts maintained excellent communication with James. Regular updates and clear explanations of each stage of the project fostered a trusting relationship. James appreciated the transparency with which CS Lofts operated, noting their honest and upfront approach as a highlight of his experience. This continuous dialogue ensured that any adjustments or decisions were made collaboratively, keeping the project aligned with his expectations.
Project Completion and Customer Feedback
Upon completion of the loft conversion, James was thoroughly pleased with the outcome. The new spaces—bedroom, office, and bathroom—were not only functional but also beautifully integrated into the existing structure of his home. In his review, James lauded CS Lofts for their professionalism and reliability, stating, “Really open and transparent,” “Good communication,” “Respectful of our space,” and “CS lofts work was great, they were on time and did absolutely everything they said they would do.” His endorsement of CS Lofts was emphatic: “Definitely recommend CS Lofts.”
Conclusion
James’s experience with CS Lofts is a testament to the company’s dedication to customer satisfaction and project excellence. From the initial consultation through to the final touches of the loft conversion, CS Lofts demonstrated their expertise and commitment to delivering high-quality results. James’s journey reflects the ideal customer experience, characterized by meticulous planning, effective communication, and outstanding execution. His story underlines why CS Lofts is highly recommended for homeowners looking to enhance their living spaces through professional and reliable loft conversions.



